Room Type Insight
C5153 トミンタワー飯田橋三丁目
トミンタワー飯田橋三丁目におけるC5153タイプの最新情報です。空室状況から更新履歴、間取り画像までまとめてチェックできます。
C5153の概要
物件の基本スペックや交通・設備情報です。暮らしやすさをイメージする際の参考にしてください。
- 住所:千代田区飯田橋3-10-1
- 建築年:1996年2月
- 家賃:229,300円~305,600円
- 共益費:4,500円/月
- 交通:東京メトロ東西線「飯田橋」駅徒歩5分|東京メトロ有楽町線・南北線、都営地下鉄大江戸線「飯田橋」駅徒歩7分|JR総武線「飯田橋」駅徒歩8分
- 設備:BSアンテナ|インターネット回線|エアコン|エレベーター|オートロック|ガスコンロ|フロントスタッフ|モニター付きインターホン|宅配BOX|室内洗濯機置場|浴室暖房乾燥機|温水洗浄便座|風呂追焚き
JKK公式サイトで最新の募集状況を確認できます。
公式サイトで詳細を見る
C5153の詳細情報
空室状況・更新履歴・間取り画像をタブで切り替えて確認できます。
現在、C5153で募集中の部屋はありません。 直近で空室は発生していないか、募集開始後すぐに申し込みが入っています。
| 最終更新 | 部屋番号 / モデル | 間取り図 | 間取り / 広さ | 方角 / 階 | 空室数 |
|---|---|---|---|---|---|
| 現在表示できる空き部屋はありません。空き状況が更新され次第こちらに表示されます。 | |||||
過去に発生した募集や変更を時系列でまとめています(最大100件)。短期間で動きがある部屋の傾向を把握できます。
| 更新日時 | 申込区分 | 部屋番号 / モデル | 間取り / 広さ | 方角 / 階 | 価格 | 変更数 |
|---|---|---|---|---|---|---|
| 2024-08-06 16:00:03 | 一般 |
1-2307
HL2R2
|
3LDK
87.32㎡
|
北西
23
|
298,100円
変更数
-1
|
-1 |
| 2024-08-06 15:56:13 | 一般 |
1-2307
HL2R2
|
3LDK
87.32㎡
|
北西
23
|
298,100円
変更数
1
|
1 |
| 2024-07-26 12:35:04 | 一般 |
1-2307
HL2R2
|
3LDK
87.32㎡
|
北西
23
|
298,100円
変更数
-1
|
-1 |
| 2024-07-26 12:26:07 | 一般 |
1-2307
HL2R2
|
3LDK
87.32㎡
|
北西
23
|
298,100円
変更数
1
|
1 |
| 2024-07-24 12:39:03 | 一般 |
1-2307
HL2R2
|
3LDK
87.32㎡
|
北西
23
|
298,100円
変更数
-1
|
-1 |
| 2024-07-24 12:24:09 | 一般 |
1-2307
HL2R2
|
3LDK
87.32㎡
|
北西
23
|
298,100円
変更数
1
|
1 |
| 2024-07-10 11:31:05 | 一般 |
1-1407
HL2R2
|
3LDK
87.32㎡
|
北西
14
|
289,300円
変更数
-1
|
-1 |
| 2024-07-10 11:17:14 | 一般 |
1-1407
HL2R2
|
3LDK
87.32㎡
|
北西
14
|
289,300円
変更数
1
|
1 |
| 2024-07-01 10:01:04 | 一般 |
1-2307
HL2R2
|
3LDK
87.32㎡
|
北西
23
|
298,100円
変更数
-1
|
-1 |
| 2024-07-01 10:01:04 | 一般 |
1-1407
HL2R2
|
3LDK
87.32㎡
|
北西
14
|
289,300円
変更数
-1
|
-1 |
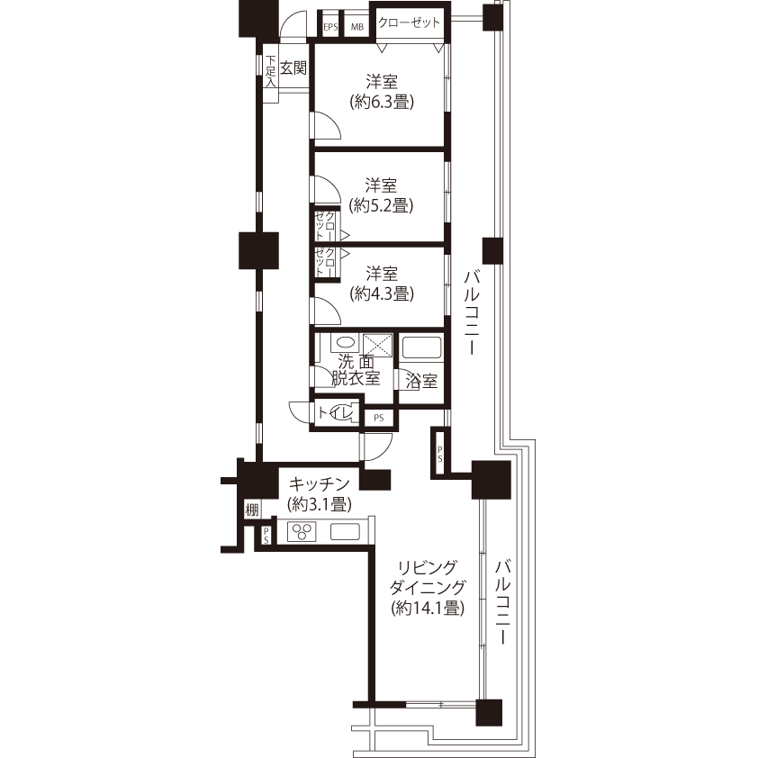
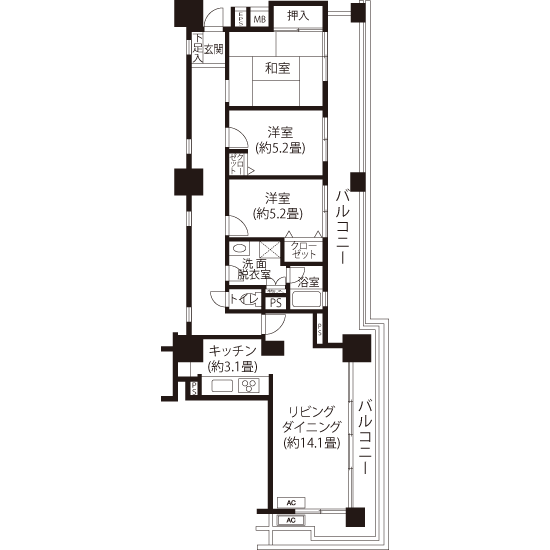
C5153タイプで確認できた5種類の間取り画像です。希望条件と照らし合わせてご覧ください。