Room Type Insight
T8072 トミンハイム南台三丁目
トミンハイム南台三丁目におけるT8072タイプの最新情報です。空室状況から更新履歴、間取り画像までまとめてチェックできます。
T8072の概要
物件の基本スペックや交通・設備情報です。暮らしやすさをイメージする際の参考にしてください。
- 住所:中野区南台3-22-1
- 建築年:2001年2月
- 家賃:114,000円~166,500円
- 共益費:6,100円/月
- 交通:東京メトロ丸ノ内線「方南町」駅徒歩12分|東京メトロ丸ノ内線「中野富士見町」駅徒歩12分
- 設備:BSアンテナ|CATV|インターネット回線|エアコン|エレベーター|フロントスタッフ|宅配BOX|室内洗濯機置場|網戸|風呂追焚き
JKK公式サイトで最新の募集状況を確認できます。
公式サイトで詳細を見る
T8072の詳細情報
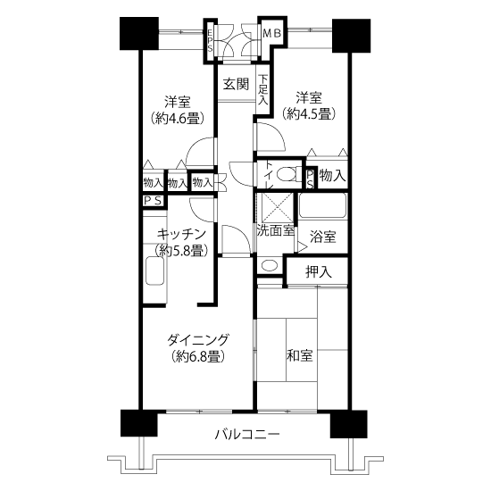
空室状況・更新履歴・間取り画像をタブで切り替えて確認できます。
現在、T8072で募集中の部屋はありません。 直近で空室は発生していないか、募集開始後すぐに申し込みが入っています。
| 最終更新 | 部屋番号 / モデル | 間取り図 | 間取り / 広さ | 方角 / 階 | 空室数 |
|---|---|---|---|---|---|
| 現在表示できる空き部屋はありません。空き状況が更新され次第こちらに表示されます。 | |||||
過去に発生した募集や変更を時系列でまとめています(最大100件)。短期間で動きがある部屋の傾向を把握できます。
| 更新日時 | 申込区分 | 部屋番号 / モデル | 間取り / 広さ | 方角 / 階 | 価格 | 変更数 |
|---|---|---|---|---|---|---|
| 最近の更新履歴はありません。 | ||||||
T8072タイプで確認できた2種類の間取り画像です。希望条件と照らし合わせてご覧ください。