Room Type Insight
C5091 トミンハイム松江二丁目
トミンハイム松江二丁目におけるC5091タイプの最新情報です。空室状況から更新履歴、間取り画像までまとめてチェックできます。
C5091の概要
物件の基本スペックや交通・設備情報です。暮らしやすさをイメージする際の参考にしてください。
- 住所:江戸川区松江2-15-8
- 建築年:1995年8月
- 家賃:102,100円~134,000円
- 共益費:4,700円/月
- 交通:JR総武線・総武快速線「新小岩」駅バス約10分「京葉交差点」バス停徒歩6分|JR総武線「小岩」駅バス約14分「京葉交差点」バス停徒歩6分|JR総武線・総武快速線、東京メトロ半蔵門線「錦糸町」駅バス約22分「京葉交差点」バス停徒歩6分
- 設備:BSアンテナ|CATV|インターネット回線|エアコン|エレベーター|フロントスタッフ|宅配BOX|室内洗濯機置場|網戸|風呂追焚き
JKK公式サイトで最新の募集状況を確認できます。
公式サイトで詳細を見る
C5091の詳細情報
空室状況・更新履歴・間取り画像をタブで切り替えて確認できます。
現在、C5091で募集中の部屋はありません。 直近で空室は発生していないか、募集開始後すぐに申し込みが入っています。
| 最終更新 | 部屋番号 / モデル | 間取り図 | 間取り / 広さ | 方角 / 階 | 空室数 |
|---|---|---|---|---|---|
| 現在表示できる空き部屋はありません。空き状況が更新され次第こちらに表示されます。 | |||||
過去に発生した募集や変更を時系列でまとめています(最大100件)。短期間で動きがある部屋の傾向を把握できます。
| 更新日時 | 申込区分 | 部屋番号 / モデル | 間取り / 広さ | 方角 / 階 | 価格 | 変更数 |
|---|---|---|---|---|---|---|
| 2021-11-13 11:55:24 | 一般 |
1-1302
LR2
|
1LDK+S
67.78㎡
|
南西
13
|
121,000円
変更数
-1
|
-1 |
| 2021-09-27 21:58:42 | 一般 |
1-1302
LR2
|
1LDK+S
67.78㎡
|
南西
13
|
121,000円
変更数
1
|
1 |
| 2021-09-27 20:55:17 | 一般 |
1-1302
LR2
|
1LDK+S
67.78㎡
|
南西
13
|
121,000円
変更数
-1
|
-1 |
| 2021-09-10 09:39:35 | 一般 |
1-1302
LR2
|
1LDK+S
67.78㎡
|
南西
13
|
121,000円
変更数
1
|
1 |
| 2021-05-09 17:55:25 | 一般 |
1-1302
LR2
|
1LDK+S
67.78㎡
|
南西
13
|
121,000円
変更数
-1
|
-1 |
| 2021-05-07 14:27:35 | 一般 |
1-1302
LR2
|
1LDK+S
67.78㎡
|
南西
13
|
121,000円
変更数
1
|
1 |
| 2021-04-22 12:29:20 | 一般 |
1-1302
LR2
|
1LDK+S
67.78㎡
|
南西
13
|
121,000円
変更数
-1
|
-1 |
| 2021-04-20 14:28:06 | 一般 |
1-1302
LR2
|
1LDK+S
67.78㎡
|
南西
13
|
121,000円
変更数
1
|
1 |
| 2021-04-08 20:55:24 | 一般 |
1-1302
LR2
|
1LDK+S
67.78㎡
|
南西
13
|
121,000円
変更数
-1
|
-1 |
| 2021-03-29 21:58:55 | 一般 |
1-1302
LR2
|
1LDK+S
67.78㎡
|
南西
13
|
121,000円
変更数
1
|
1 |
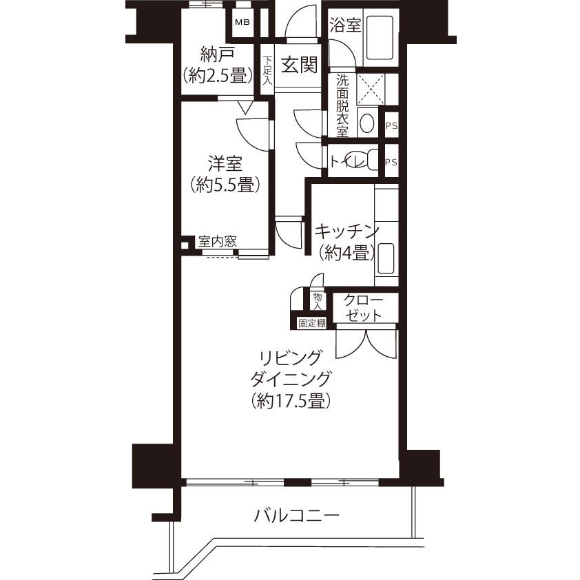
C5091タイプで確認できた2種類の間取り画像です。希望条件と照らし合わせてご覧ください。