Room Type Insight
T0012 トミンハイム海岸三丁目
トミンハイム海岸三丁目におけるT0012タイプの最新情報です。空室状況から更新履歴、間取り画像までまとめてチェックできます。
T0012の概要
物件の基本スペックや交通・設備情報です。暮らしやすさをイメージする際の参考にしてください。
- 住所:港区海岸3-9-40
- 建築年:1993年3月
- 家賃:140,300円~198,000円
- 共益費:6,000円/月
- 交通:東京臨海新交通ゆりかもめ「芝浦ふ頭」駅徒歩8分|JR山手線・京浜東北線「田町」駅徒歩14分
- 設備:BSアンテナ|インターネット回線|エアコン|エレベーター|オートロック|ガスコンロ|フロントスタッフ|モニター付きインターホン|宅配BOX|室内洗濯機置場|浴室暖房乾燥機|網戸|電気自動車用充電設備|風呂追焚き
JKK公式サイトで最新の募集状況を確認できます。
公式サイトで詳細を見る
T0012の詳細情報
空室状況・更新履歴・間取り画像をタブで切り替えて確認できます。
現在、T0012で募集中の部屋はありません。 直近で空室は発生していないか、募集開始後すぐに申し込みが入っています。
| 最終更新 | 部屋番号 / モデル | 間取り図 | 間取り / 広さ | 方角 / 階 | 空室数 |
|---|---|---|---|---|---|
| 現在表示できる空き部屋はありません。空き状況が更新され次第こちらに表示されます。 | |||||
過去に発生した募集や変更を時系列でまとめています(最大100件)。短期間で動きがある部屋の傾向を把握できます。
| 更新日時 | 申込区分 | 部屋番号 / モデル | 間取り / 広さ | 方角 / 階 | 価格 | 変更数 |
|---|---|---|---|---|---|---|
| 最近の更新履歴はありません。 | ||||||
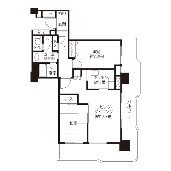
T0012タイプで確認できた3種類の間取り画像です。希望条件と照らし合わせてご覧ください。