Room Type Insight
L8712 コーシャハイム田端テラス
コーシャハイム田端テラスにおけるL8712タイプの最新情報です。空室状況から更新履歴、間取り画像までまとめてチェックできます。
L8712の概要
物件の基本スペックや交通・設備情報です。暮らしやすさをイメージする際の参考にしてください。
- 住所:北区田端5-13-13
- 建築年:2016年12月
- 家賃:97,900円~184,500円
- 共益費:4,900円/月
- 交通:JR山手線・京浜東北線「田端」駅徒歩7分|JR山手線「駒込」駅徒歩10分|東京メトロ南北線「駒込」駅徒歩13分
- 設備:BSアンテナ|CATV|インターネット回線|エアコン|エレベーター|オートロック|ガスコンロ|フロントスタッフ|モニター付きインターホン|宅配BOX|室内洗濯機置場|床暖房|浴室暖房乾燥機|温水洗浄便座|網戸|風呂追焚き
JKK公式サイトで最新の募集状況を確認できます。
公式サイトで詳細を見る
L8712の詳細情報
空室状況・更新履歴・間取り画像をタブで切り替えて確認できます。
現在、L8712で募集中の部屋はありません。 直近で空室は発生していないか、募集開始後すぐに申し込みが入っています。
| 最終更新 | 部屋番号 / モデル | 間取り図 | 間取り / 広さ | 方角 / 階 | 空室数 |
|---|---|---|---|---|---|
| 現在表示できる空き部屋はありません。空き状況が更新され次第こちらに表示されます。 | |||||
過去に発生した募集や変更を時系列でまとめています(最大100件)。短期間で動きがある部屋の傾向を把握できます。
| 更新日時 | 申込区分 | 部屋番号 / モデル | 間取り / 広さ | 方角 / 階 | 価格 | 変更数 |
|---|---|---|---|---|---|---|
| 2025-06-20 19:00:03 | 一般 |
1-310
A1
|
1DK
33.82㎡
|
南西
3
|
108,900円
変更数
-1
|
-1 |
| 2025-06-20 16:30:12 | 一般 |
1-310
A1
|
1DK
33.82㎡
|
南西
3
|
108,900円
変更数
1
|
1 |
| 2025-06-18 16:59:03 | 一般 |
1-310
A1
|
1DK
33.82㎡
|
南西
3
|
108,900円
変更数
-1
|
-1 |
| 2025-06-18 16:30:13 | 一般 |
1-310
A1
|
1DK
33.82㎡
|
南西
3
|
108,900円
変更数
1
|
1 |
| 2025-05-21 17:18:06 | 一般 |
1-310
A1
|
1DK
33.82㎡
|
南西
3
|
108,900円
変更数
-1
|
-1 |
| 2025-05-21 16:00:13 | 一般 |
1-310
A1
|
1DK
33.82㎡
|
南西
3
|
108,900円
変更数
1
|
1 |
| 2025-04-30 16:05:05 | 一般 |
1-310
A1
|
1DK
33.82㎡
|
南西
3
|
108,900円
変更数
-1
|
-1 |
| 2025-04-30 15:40:04 | 一般 |
1-310
A1
|
1DK
33.82㎡
|
南西
3
|
108,900円
変更数
1
|
1 |
| 2022-07-08 12:52:35 | 一般 |
1-312
A2
|
1DK
39.19㎡
|
南西
3
|
122,800円
変更数
-1
|
-1 |
| 2022-07-04 17:08:03 | 一般 |
1-312
A2
|
1DK
39.19㎡
|
南西
3
|
122,800円
変更数
1
|
1 |
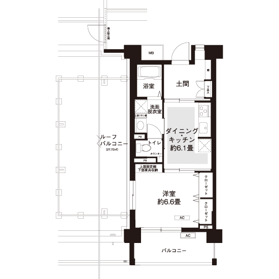
L8712タイプで確認できた3種類の間取り画像です。希望条件と照らし合わせてご覧ください。