Room Type Insight
L8733 コーシャハイム向原ガーデンコート
コーシャハイム向原ガーデンコートにおけるL8733タイプの最新情報です。空室状況から更新履歴、間取り画像までまとめてチェックできます。
L8733の概要
物件の基本スペックや交通・設備情報です。暮らしやすさをイメージする際の参考にしてください。
- 住所:板橋区向原3-7-Aほか
- 建築年:2018年5月
- 家賃:98,300円~208,500円
- 共益費:5,400円/月
- 交通:東京メトロ有楽町線・副都心線、西武有楽町線「小竹向原」駅徒歩3分~5分
- 設備:BSアンテナ|CATV|インターネット回線|エアコン|エレベーター|オートロック|ガスコンロ|フロントスタッフ|モニター付きインターホン|宅配BOX|室内洗濯機置場|床暖房|浴室暖房乾燥機|温水洗浄便座|網戸|電気自動車用充電設備|風呂追焚き
JKK公式サイトで最新の募集状況を確認できます。
公式サイトで詳細を見る
L8733の詳細情報
空室状況・更新履歴・間取り画像をタブで切り替えて確認できます。
現在、L8733で募集中の部屋はありません。 直近で空室は発生していないか、募集開始後すぐに申し込みが入っています。
| 最終更新 | 部屋番号 / モデル | 間取り図 | 間取り / 広さ | 方角 / 階 | 空室数 |
|---|---|---|---|---|---|
| 現在表示できる空き部屋はありません。空き状況が更新され次第こちらに表示されます。 | |||||
過去に発生した募集や変更を時系列でまとめています(最大100件)。短期間で動きがある部屋の傾向を把握できます。
| 更新日時 | 申込区分 | 部屋番号 / モデル | 間取り / 広さ | 方角 / 階 | 価格 | 変更数 |
|---|---|---|---|---|---|---|
| 2025-11-18 16:11:35 | 一般 |
A-310
AL3
|
1LDK
50.25㎡
|
西
3
|
132,300円
変更数
-1
|
-1 |
| 2025-11-18 16:06:08 | 一般 |
A-310
AL3
|
1LDK
50.25㎡
|
西
3
|
132,300円
変更数
1
|
1 |
| 2025-11-17 11:15:05 | 一般 |
B-804
AL3
|
1LDK
50.25㎡
|
南
8
|
146,200円
変更数
-1
|
-1 |
| 2025-11-17 11:14:05 | 一般 |
B-804
AL3
|
1LDK
50.25㎡
|
南
8
|
146,200円
変更数
1
|
1 |
| 2025-11-14 09:59:07 | 一般 |
A-310
AL3
|
1LDK
50.25㎡
|
西
3
|
132,300円
変更数
-1
|
-1 |
| 2025-11-14 09:58:06 | 一般 |
A-310
AL3
|
1LDK
50.25㎡
|
西
3
|
132,300円
変更数
1
|
1 |
| 2025-11-13 10:01:04 | 結婚 |
A-709
AL3
|
1LDK
50.25㎡
|
西
7
|
136,400円
変更数
-1
|
-1 |
| 2025-11-13 10:00:07 | 結婚 |
A-709
AL3
|
1LDK
50.25㎡
|
西
7
|
136,400円
変更数
1
|
1 |
| 2025-09-03 09:40:03 | 一般 |
A-719
AL1
|
1LDK
40.2㎡
|
南東
7
|
121,600円
変更数
-1
|
-1 |
| 2025-09-03 09:33:07 | 一般 |
A-719
AL1
|
1LDK
40.2㎡
|
南東
7
|
121,600円
変更数
1
|
1 |
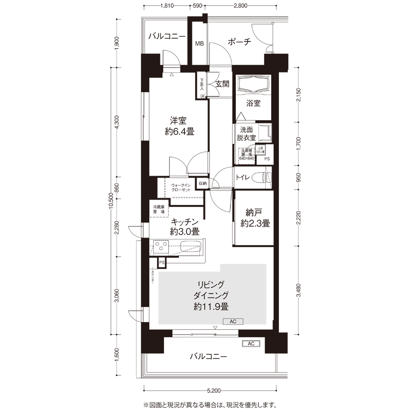
L8733タイプで確認できた9種類の間取り画像です。希望条件と照らし合わせてご覧ください。