Room Type Insight
L8665 コーシャハイム向原
コーシャハイム向原におけるL8665タイプの最新情報です。空室状況から更新履歴、間取り画像までまとめてチェックできます。
L8665の概要
物件の基本スペックや交通・設備情報です。暮らしやすさをイメージする際の参考にしてください。
- 住所:板橋区向原3-7-1ほか
- 建築年:2010年6月・2014年7月
- 家賃:90,200円~172,000円
- 共益費:5,200円/月
- 交通:東京メトロ有楽町線・副都心線、西武有楽町線「小竹向原」駅徒歩7分~11分
- 設備:BSアンテナ|CATV|インターネット回線|エアコン|エレベーター|オートロック|ガスコンロ|フロントスタッフ|モニター付きインターホン|宅配BOX|室内洗濯機置場|床暖房|浴室暖房乾燥機|温水洗浄便座|網戸|電気自動車用充電設備|風呂追焚き
JKK公式サイトで最新の募集状況を確認できます。
公式サイトで詳細を見る
L8665の詳細情報
空室状況・更新履歴・間取り画像をタブで切り替えて確認できます。
現在、L8665で募集中の部屋はありません。 直近で空室は発生していないか、募集開始後すぐに申し込みが入っています。
| 最終更新 | 部屋番号 / モデル | 間取り図 | 間取り / 広さ | 方角 / 階 | 空室数 |
|---|---|---|---|---|---|
| 現在表示できる空き部屋はありません。空き状況が更新され次第こちらに表示されます。 | |||||
過去に発生した募集や変更を時系列でまとめています(最大100件)。短期間で動きがある部屋の傾向を把握できます。
| 更新日時 | 申込区分 | 部屋番号 / モデル | 間取り / 広さ | 方角 / 階 | 価格 | 変更数 |
|---|---|---|---|---|---|---|
| 2024-11-11 12:45:04 | 子育 |
6-107
XL12
|
2LDK+CON
60.5㎡
|
南東
1
|
135,900円
変更数
-1
|
-1 |
| 2024-11-11 12:11:07 | 子育 |
6-107
XL12
|
2LDK+CON
60.5㎡
|
南東
1
|
135,900円
変更数
1
|
1 |
| 2024-10-24 17:06:06 | 子育 |
6-107
XL12
|
2LDK+CON
60.5㎡
|
南東
1
|
135,900円
変更数
-1
|
-1 |
| 2024-10-24 16:44:03 | 子育 |
6-107
XL12
|
2LDK+CON
60.5㎡
|
南東
1
|
135,900円
変更数
1
|
1 |
| 2023-07-13 09:45:13 | 子育 |
6-106
XL13
|
2LDK+CON
61.54㎡
|
南東
1
|
133,400円
変更数
-1
|
-1 |
| 2023-07-13 09:44:14 | 子育 |
6-106
XL13
|
2LDK+CON
61.54㎡
|
南東
1
|
133,400円
変更数
1
|
1 |
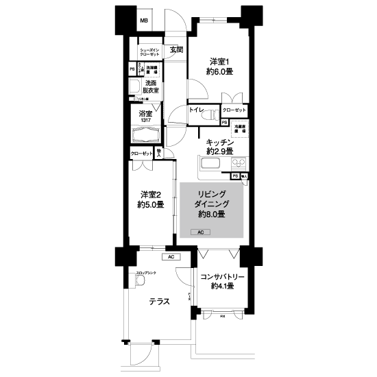
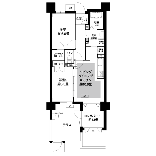
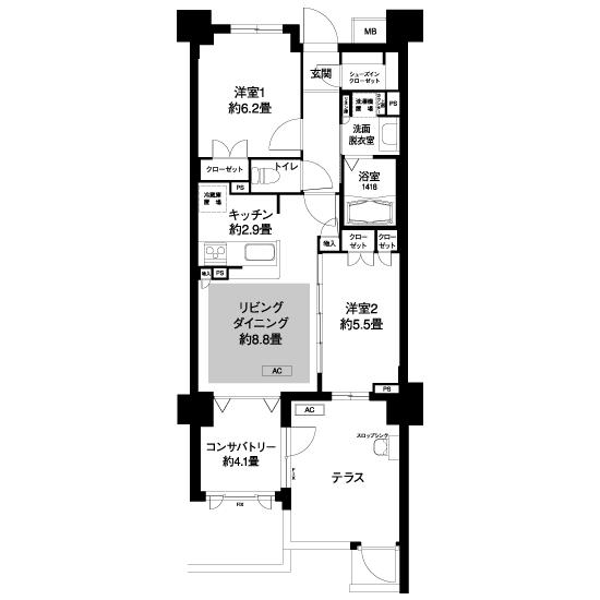
L8665タイプで確認できた3種類の間取り画像です。希望条件と照らし合わせてご覧ください。