Room Type Insight
L8664 コーシャハイム向原
コーシャハイム向原におけるL8664タイプの最新情報です。空室状況から更新履歴、間取り画像までまとめてチェックできます。
L8664の概要
物件の基本スペックや交通・設備情報です。暮らしやすさをイメージする際の参考にしてください。
- 住所:板橋区向原3-7-1ほか
- 建築年:2010年6月・2014年7月
- 家賃:90,200円~172,000円
- 共益費:5,200円/月
- 交通:東京メトロ有楽町線・副都心線、西武有楽町線「小竹向原」駅徒歩7分~11分
- 設備:BSアンテナ|CATV|インターネット回線|エアコン|エレベーター|オートロック|ガスコンロ|フロントスタッフ|モニター付きインターホン|宅配BOX|室内洗濯機置場|床暖房|浴室暖房乾燥機|温水洗浄便座|網戸|電気自動車用充電設備|風呂追焚き
JKK公式サイトで最新の募集状況を確認できます。
公式サイトで詳細を見る
L8664の詳細情報
空室状況・更新履歴・間取り画像をタブで切り替えて確認できます。
現在、L8664で募集中の部屋はありません。 直近で空室は発生していないか、募集開始後すぐに申し込みが入っています。
| 最終更新 | 部屋番号 / モデル | 間取り図 | 間取り / 広さ | 方角 / 階 | 空室数 |
|---|---|---|---|---|---|
| 現在表示できる空き部屋はありません。空き状況が更新され次第こちらに表示されます。 | |||||
過去に発生した募集や変更を時系列でまとめています(最大100件)。短期間で動きがある部屋の傾向を把握できます。
| 更新日時 | 申込区分 | 部屋番号 / モデル | 間取り / 広さ | 方角 / 階 | 価格 | 変更数 |
|---|---|---|---|---|---|---|
| 2022-12-12 10:25:14 | 子育 |
6-109
XL10
|
2LDK+CON
57.61㎡
|
南東
1
|
129,200円
変更数
-1
|
-1 |
| 2022-12-12 09:56:38 | 子育 |
6-109
XL10
|
2LDK+CON
57.61㎡
|
南東
1
|
129,200円
変更数
1
|
1 |
| 2022-11-16 10:07:33 | 子育 |
6-109
XL10
|
2LDK+CON
57.61㎡
|
南東
1
|
129,200円
変更数
-1
|
-1 |
| 2022-11-16 09:56:20 | 子育 |
6-109
XL10
|
2LDK+CON
57.61㎡
|
南東
1
|
129,200円
変更数
1
|
1 |
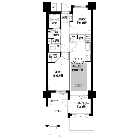
L8664タイプで確認できた3種類の間取り画像です。希望条件と照らし合わせてご覧ください。