Room Type Insight
L8426 コーシャハイム三宿テラス
コーシャハイム三宿テラスにおけるL8426タイプの最新情報です。空室状況から更新履歴、間取り画像までまとめてチェックできます。
L8426の概要
物件の基本スペックや交通・設備情報です。暮らしやすさをイメージする際の参考にしてください。
- 住所:世田谷区三宿2-16-10
- 建築年:2014年1月
- 家賃:107,200円~206,100円
- 共益費:6,300円/月
- 交通:東急田園都市線「池尻大橋」駅徒歩13分|東急田園都市線「三軒茶屋」駅徒歩14分
- 設備:BSアンテナ|CATV|インターネット回線|エアコン|エレベーター|オートロック|ガスコンロ|フロントスタッフ|モニター付きインターホン|宅配BOX|室内洗濯機置場|床暖房|浴室暖房乾燥機|温水洗浄便座|網戸|電気自動車用充電設備|風呂追焚き
JKK公式サイトで最新の募集状況を確認できます。
公式サイトで詳細を見る
L8426の詳細情報
空室状況・更新履歴・間取り画像をタブで切り替えて確認できます。
現在、L8426で募集中の部屋はありません。 直近で空室は発生していないか、募集開始後すぐに申し込みが入っています。
| 最終更新 | 部屋番号 / モデル | 間取り図 | 間取り / 広さ | 方角 / 階 | 空室数 |
|---|---|---|---|---|---|
| 現在表示できる空き部屋はありません。空き状況が更新され次第こちらに表示されます。 | |||||
過去に発生した募集や変更を時系列でまとめています(最大100件)。短期間で動きがある部屋の傾向を把握できます。
| 更新日時 | 申込区分 | 部屋番号 / モデル | 間取り / 広さ | 方角 / 階 | 価格 | 変更数 |
|---|---|---|---|---|---|---|
| 2025-07-02 15:22:03 | 一般 |
1-314
AL7a
|
1LDK
44.32㎡
|
南
3
|
149,100円
変更数
-1
|
-1 |
| 2025-07-02 15:05:05 | 一般 |
1-314
AL7a
|
1LDK
44.32㎡
|
南
3
|
149,100円
変更数
1
|
1 |
| 2025-06-23 10:19:06 | 一般 |
1-314
AL7a
|
1LDK
44.32㎡
|
南
3
|
149,100円
変更数
-1
|
-1 |
| 2025-06-23 09:30:10 | 一般 |
1-314
AL7a
|
1LDK
44.32㎡
|
南
3
|
149,100円
変更数
1
|
1 |
| 2024-11-26 11:35:13 | 一般 |
1-415
AL7b
|
1LDK
44.32㎡
|
南
4
|
148,900円
変更数
-1
|
-1 |
| 2024-11-26 11:26:09 | 一般 |
1-415
AL7b
|
1LDK
44.32㎡
|
南
4
|
148,900円
変更数
1
|
1 |
| 2024-11-19 14:23:30 | 一般 |
1-415
AL7b
|
1LDK
44.32㎡
|
南
4
|
148,900円
変更数
-1
|
-1 |
| 2024-11-19 13:19:07 | 一般 |
1-415
AL7b
|
1LDK
44.32㎡
|
南
4
|
148,900円
変更数
1
|
1 |
| 2024-11-13 16:44:04 | 一般 |
1-415
AL7b
|
1LDK
44.32㎡
|
南
4
|
148,900円
変更数
-1
|
-1 |
| 2024-11-13 16:23:10 | 一般 |
1-415
AL7b
|
1LDK
44.32㎡
|
南
4
|
148,900円
変更数
1
|
1 |
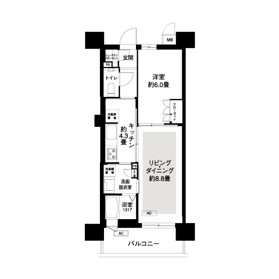
L8426タイプで確認できた2種類の間取り画像です。希望条件と照らし合わせてご覧ください。