Room Type Insight
L8634 コーシャハイム方南町ガーデンコート
コーシャハイム方南町ガーデンコートにおけるL8634タイプの最新情報です。空室状況から更新履歴、間取り画像までまとめてチェックできます。
L8634の概要
物件の基本スペックや交通・設備情報です。暮らしやすさをイメージする際の参考にしてください。
- 住所:杉並区和泉4-44-1ほか
- 建築年:2014年2月
- 家賃:98,200円~196,200円
- 共益費:5,500円/月
- 交通:東京メトロ丸ノ内線「方南町」駅徒歩5分
- 設備:BSアンテナ|CATV|インターネット回線|エアコン|エレベーター|オートロック|ガスコンロ|フロントスタッフ|モニター付きインターホン|宅配BOX|室内洗濯機置場|床暖房|浴室暖房乾燥機|温水洗浄便座|網戸|風呂追焚き
JKK公式サイトで最新の募集状況を確認できます。
公式サイトで詳細を見る
L8634の詳細情報
空室状況・更新履歴・間取り画像をタブで切り替えて確認できます。
現在、L8634で募集中の部屋はありません。 直近で空室は発生していないか、募集開始後すぐに申し込みが入っています。
| 最終更新 | 部屋番号 / モデル | 間取り図 | 間取り / 広さ | 方角 / 階 | 空室数 |
|---|---|---|---|---|---|
| 現在表示できる空き部屋はありません。空き状況が更新され次第こちらに表示されます。 | |||||
過去に発生した募集や変更を時系列でまとめています(最大100件)。短期間で動きがある部屋の傾向を把握できます。
| 更新日時 | 申込区分 | 部屋番号 / モデル | 間取り / 広さ | 方角 / 階 | 価格 | 変更数 |
|---|---|---|---|---|---|---|
| 2025-12-15 10:01:09 | 結婚 |
1-108
AL6
|
1LDK+S
53.02㎡
|
南東
1
|
146,300円
変更数
-1
|
-1 |
| 2025-12-15 10:00:15 | 結婚 |
1-108
AL6
|
1LDK+S
53.02㎡
|
南東
1
|
146,300円
変更数
1
|
1 |
| 2024-02-21 14:20:04 | 一般 |
1-507
AL6
|
1LDK+S
53.02㎡
|
南東
5
|
157,200円
変更数
-1
|
-1 |
| 2024-02-21 14:03:11 | 一般 |
1-507
AL6
|
1LDK+S
53.02㎡
|
南東
5
|
157,200円
変更数
1
|
1 |
| 2024-01-17 14:38:04 | 一般 |
2-506
AL5
|
1LDK+S
50.02㎡
|
南
5
|
148,500円
変更数
-1
|
-1 |
| 2024-01-17 14:18:03 | 一般 |
2-506
AL5
|
1LDK+S
50.02㎡
|
南
5
|
148,500円
変更数
1
|
1 |
| 2022-07-16 15:55:48 | 一般 |
1-108
AL6
|
1LDK+S
53.02㎡
|
南東
1
|
145,500円
変更数
-1
|
-1 |
| 2022-07-15 17:55:36 | 一般 |
1-108
AL6
|
1LDK+S
53.02㎡
|
南東
1
|
145,500円
変更数
1
|
1 |
| 2022-07-11 21:55:29 | 一般 |
1-108
AL6
|
1LDK+S
53.02㎡
|
南東
1
|
145,500円
変更数
-1
|
-1 |
| 2022-07-11 14:06:43 | 一般 |
1-108
AL6
|
1LDK+S
53.02㎡
|
南東
1
|
145,500円
変更数
1
|
1 |
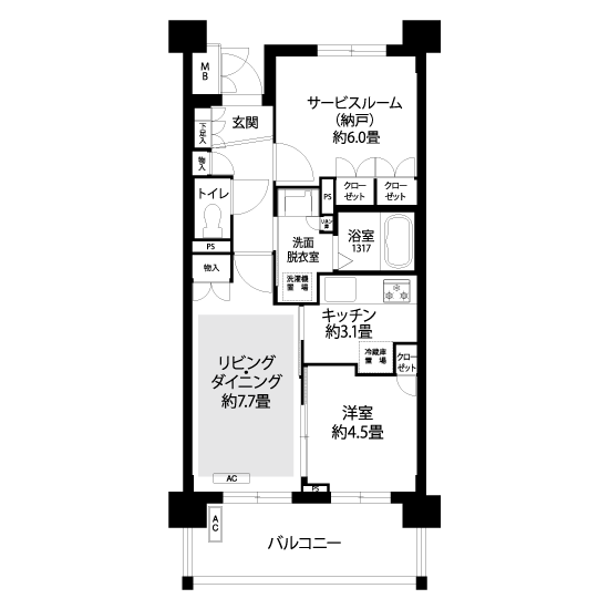
L8634タイプで確認できた2種類の間取り画像です。希望条件と照らし合わせてご覧ください。