Room Type Insight
L8399 コーシャハイム千歳烏山
コーシャハイム千歳烏山におけるL8399タイプの最新情報です。空室状況から更新履歴、間取り画像までまとめてチェックできます。
L8399の概要
物件の基本スペックや交通・設備情報です。暮らしやすさをイメージする際の参考にしてください。
- 住所:世田谷区南烏山6-12-1ほか
- 建築年:2010年2月・2013年9月・10月
- 家賃:98,200円~185,600円
- 共益費:5,300円/月
- 交通:京王線「千歳烏山」駅徒歩2分~5分
- 設備:BSアンテナ|CATV|インターネット回線|エアコン|エレベーター|オートロック|ガスコンロ|フロントスタッフ|モニター付きインターホン|宅配BOX|室内洗濯機置場|床暖房|浴室暖房乾燥機|温水洗浄便座|網戸|電気自動車用充電設備|風呂追焚き
JKK公式サイトで最新の募集状況を確認できます。
公式サイトで詳細を見る
L8399の詳細情報
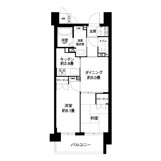
空室状況・更新履歴・間取り画像をタブで切り替えて確認できます。
現在、L8399で募集中の部屋はありません。 直近で空室は発生していないか、募集開始後すぐに申し込みが入っています。
| 最終更新 | 部屋番号 / モデル | 間取り図 | 間取り / 広さ | 方角 / 階 | 空室数 |
|---|---|---|---|---|---|
| 現在表示できる空き部屋はありません。空き状況が更新され次第こちらに表示されます。 | |||||
過去に発生した募集や変更を時系列でまとめています(最大100件)。短期間で動きがある部屋の傾向を把握できます。
| 更新日時 | 申込区分 | 部屋番号 / モデル | 間取り / 広さ | 方角 / 階 | 価格 | 変更数 |
|---|---|---|---|---|---|---|
| 2023-12-18 14:14:12 | 子育 |
6-306
V6a
|
2DK
44.88㎡
|
南西
3
|
127,800円
変更数
-1
|
-1 |
| 2023-12-18 12:12:08 | 子育 |
6-306
V6a
|
2DK
44.88㎡
|
南西
3
|
127,800円
変更数
1
|
1 |
| 2023-12-13 12:38:04 | 一般 |
6-306
V6a
|
2DK
44.88㎡
|
南西
3
|
127,800円
変更数
-1
|
-1 |
| 2023-12-13 12:13:11 | 一般 |
6-306
V6a
|
2DK
44.88㎡
|
南西
3
|
127,800円
変更数
1
|
1 |
| 2023-11-22 16:56:04 | 子育 |
6-306
V6a
|
2DK
44.88㎡
|
南西
3
|
127,800円
変更数
-1
|
-1 |
| 2023-11-22 12:12:06 | 子育 |
6-306
V6a
|
2DK
44.88㎡
|
南西
3
|
127,800円
変更数
1
|
1 |
| 2023-11-13 12:13:29 | 子育 |
6-306
V6a
|
2DK
44.88㎡
|
南西
3
|
127,800円
変更数
-1
|
-1 |
| 2023-11-13 11:13:05 | 子育 |
6-306
V6a
|
2DK
44.88㎡
|
南西
3
|
127,800円
変更数
1
|
1 |
| 2023-11-09 11:50:13 | 子育 |
6-306
V6a
|
2DK
44.88㎡
|
南西
3
|
127,800円
変更数
-1
|
-1 |
| 2023-11-09 11:09:59 | 子育 |
6-306
V6a
|
2DK
44.88㎡
|
南西
3
|
127,800円
変更数
1
|
1 |
L8399タイプで確認できた2種類の間取り画像です。希望条件と照らし合わせてご覧ください。